PRODUCT CENTER
生活饮用水紫外线消毒器
一、产品简介
我公司生产的乾顺牌QS-XZY30-型生活饮用水紫外线消毒器(以下简称紫外线消毒器)工作原理是利用波长为225nm-275nm的紫外线对微生物的杀灭作用使水得以净化。水流经消毒器时经紫外光照射,水中的细菌即被杀死。
二、产品特点
1.紫外线消毒器杀菌速度快、效果好,不改变水的物理、化学性质不增加水的嗅味,不产生致癌的三氯甲烷,一经安装,操作简便,管理方便。
2.紫外线消毒器筒体采用优质的食品级不锈钢板加工而成,使用寿命是铝合金制品的5-10倍,耐压高,无金属离子污染。
3.紫外线杀菌灯管选用国家卫生部门、防疫部门鉴定的产品,低压30w,主谱线235.7nm,此波长紫外线杀菌率高,达98%以上且耗能低连续使用寿命可达3000小时以上。
4.电器控制部分与箱体采用一体设计,外型美观、节省空间。
三、作用范围
适用于以江河、湖塘和井水为源的小型供水系统,尤其是使用高位水箱和备有贮水池的给水系统。在高位水箱和贮水池出口处安装紫外线消毒器可有效的解决由于二次污染造成的有害菌群超标的问题,同时也适用于食品、饮料、造酒行业及游泳池的用水消毒。
四、安装、调试
1. 紫外线消毒器应水平安装(严禁垂直安装)。
2. 外线消毒器筒体不得承受外部压力。
3. 紫外线消毒器应安装在水箱或水塔的出口处,若水量大、水压高或管网过长时则以安装在接近用户的输水干(支)管上为佳。
4. 从紫外线消毒器的两端向外延伸,应分别留有≥1米≥0.4米的空间,以便于更换灯管,紫外线消毒器控制面板前应留0.6米的无障碍 空间,以便于维修
5. 无论选用一台或多台紫外线消毒器并联,均应安装旁通管路和截止阀,以便于维修。
6. 合理的选择安装位置,注意电控部分的防水、防潮。
7. 按铭牌标识的电压、功率选择电源插座、导线或接线板连接。石英玻璃套管及紫外线灯管均属于贵重易碎品,在运输、安装、使用中应避免磕碰。
五、产品选型表

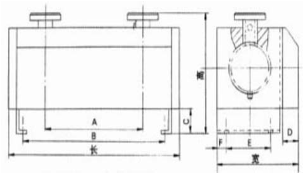
六、尺寸规格
上 出 水
石英管数 | 长 | 宽 | 高 | 方板尺寸 | 圆筒直径 | 出水管径 | A | B | C | D | E | F |
3 | 1000 | 255 | 320 | 170×170 | φ130 | φ40 | 740 | 856 | 90 | 85 | 75 | 30 |
4 | 1000 | 275 | 345 | 190×190 | φ150 | φ50 | 730 | 856 | 90 | 85 | 105 | 30 |
5 | 1000 | 300 | 365 | 215×215 | φ175 | φ80 | 730 | 856 | 90 | 85 | 130 | 30 |
7 | 1000 | 315 | 385 | 230×230 | φ190 | φ80 | 730 | 856 | 90 | 85 | 125 | 40 |
8 | 1000 | 330 | 410 | 245×245 | φ205 | φ100 | 700 | 856 | 90 | 85 | 140 | 40 |
10 | 1000 | 355 | 435 | 270×270 | φ230 | φ100 | 700 | 856 | 90 | 85 | 165 | 40 |
12 | 1000 | 385 | 495 | 300×300 | φ265 | φ125 | 660 | 854 | 90 | 85 | 195 | 40 |
14 | 1000 | 405 | 510 | 320×320 | φ280 | φ125 | 660 | 854 | 90 | 85 | 215 | 40 |
16 | 1000 | 425 | 520 | 340×340 | φ290 | φ150 | 640 | 854 | 90 | 85 | 235 | 40 |
18 | 1000 | 425 | 500 | 340×340 | φ300 | φ150 | 640 | 850 | 65 | 85 | 235 | 40 |
20 | 1000 | 445 | 500 | 360×360 | φ325 | φ150 | 640 | 850 | 65 | 85 | 255 | 40 |
24 | 1000 | 475 | 553 | 390×390 | φ350 | φ150 | 640 | 850 | 65 | 85 | 285 | 40 |
28 | 1000 | 485 | 565 | 400×400 | φ362 | φ150 | 640 | 850 | 65 | 85 | 295 | 40 |
32 | 1000 | 515 | 595 | 430×430 | φ282 | φ150 | 640 | 850 | 65 | 85 | 325 | 40 |
40 | 1000 | 585 | 665 | 500×500 | φ440 | φ150 | 640 | 850 | 65 | 85 | 395 | 40 |


侧 出 水
石英管数 | 长 | 宽 | 高 | 方板尺寸 | 圆筒直径 | 出水管径 | A | B | C | D | E | F | G |
3 | 1000 | 350 | 260 | 170×170 | φ130 | φ40 | 740 | 856 | 90 | 85 | 75 | 30 | 175 |
4 | 1000 | 375 | 280 | 190×190 | φ150 | φ50 | 730 | 856 | 90 | 85 | 105 | 30 | 185 |
5 | 1000 | 380 | 305 | 215×215 | φ175 | φ80 | 730 | 856 | 90 | 85 | 130 | 30 | 197.5 |
7 | 1000 | 350 | 320 | 230×230 | φ190 | φ80 | 730 | 856 | 90 | 85 | 125 | 40 | 205 |
8 | 1000 | 425 | 335 | 245×245 | φ205 | φ100 | 700 | 856 | 90 | 85 | 140 | 40 | 212.5 |
10 | 1000 | 453 | 360 | 270×270 | φ230 | φ100 | 700 | 856 | 90 | 85 | 165 | 40 | 225 |
12 | 1000 | 510 | 390 | 300×300 | φ265 | φ125 | 660 | 854 | 90 | 85 | 195 | 40 | 240 |
14 | 1000 | 525 | 410 | 320×320 | φ280 | φ125 | 660 | 854 | 90 | 85 | 215 | 40 | 250 |
16 | 1000 | 535 | 430 | 340×340 | φ290 | φ150 | 640 | 854 | 90 | 85 | 235 | 40 | 260 |
18 | 1000 | 540 | 405 | 340×340 | φ300 | φ150 | 640 | 850 | 65 | 85 | 235 | 40 | 235 |
20 | 1000 | 565 | 400 | 360×360 | φ325 | φ150 | 640 | 850 | 65 | 85 | 255 | 40 | 245 |
24 | 1000 | 593 | 455 | 390×390 | φ350 | φ150 | 640 | 850 | 65 | 85 | 285 | 40 | 260 |
28 | 1000 | 605 | 465 | 400×400 | φ362 | φ150 | 640 | 850 | 65 | 85 | 295 | 40 | 265 |
32 | 1000 | 635 | 495 | 430×430 | φ282 | φ150 | 640 | 850 | 65 | 85 | 325 | 40 | 280 |
40 | 1000 | 705 | 565 | 500×500 | φ440 | φ150 | 640 | 850 | 65 | 85 | 395 | 40 | 315 |

关注我们
联系方式
联系人:李经理、勾经理
手机:13801252800、13910393098
座机:010-61537223、010-61537393
电子邮件(E-mail):qianshunlongda@126.com
地址:北京市北京经济技术开发区(通州)东石东一路3号院4号楼9层901
北京乾顺隆达工贸有限公司 京ICP备05064841号